ELDREW
Obróbka metali / Maszyny do obróbki metali
37-464 Stalowa Wola, Modrzewiowa 5
37-464Stalowa WolaModrzewiowa 5Podkarpackie604442530604 442... 530więcej
Twoja wiadomość została wysłana.
Wystąpił bład podczas wysyłania wiadomości. Spróbuj ponownie później.
Ok
2
Solidnie wykonany, w pełni hydraulicznie podnosi i opuszcza trzymany przedmiot . Prosty sposób działania pompy hydraulicznej z chromowanym tłokiem i zaworem bezpieczeństwa. Bezstopniowe obniżenie prędkości regulowane przez bardzo czuły zawór spustowy. Szybki system mechanicznego unoszenia wideł na wysokość 800 mm. Bardzo stabilna, odporna na skręcanie konstrukcja ramy i wideł. Kąt skrętu kierownicy równy 210° pozwala na niezwykłą zwrotność wózka. Ergonomiczny drążek antypoślizgowy z dodatkową powłoką z tworzywa sztucznego. Pozwala na bardzo łatwe przenoszenie ciężkich przedmiotów dzięki wytrzymałym i super cichym kółkom z aluminium powleczonym gumą.
Funkcjonalna dźwignia umożliwia szybkie podnoszenie, opuszczanie i pozycję zerową przy użyciu jednej ręki. Komfortowa obsługa dzięki specjalnej powłoce. W pełni hydrauliczne opuszczanie i podnoszenie dzięki zaworowi bezpieczeństwa i trzem chromowanym tłokom. Prędkość opuszczania jest automatycznie regulowana ze względu na ciężar ładunku. Szybkie osiągnięcie maksymalnej wysokości wideł. Dodatkowy system stabilizacji podczas pracy. System zapobiegający przypadkowemu toczeniu. Wysokość podwozia równa zaledwie 430 mm daje wiele możliwości zastosowania.
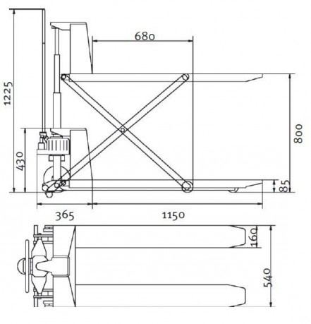
Dane techniczne:
Udźwig 1 t
Szerokość całkowita 540 mm
Szerokość wideł 160 mm
Długość wideł 1150 mm
Min. wysokość wideł 85 mm
Wys. podnoszenia 715 mm
Wysokość podwozia 430 mm
Kąt skrętu kół 210°
Średnica kół skrętnych 180 x 50 mm
Średnica kół wideł 74 x 50 mm
Waga 122 kg
Funkcjonalna dźwignia umożliwia szybkie podnoszenie, opuszczanie i pozycję zerową przy użyciu jednej ręki. Komfortowa obsługa dzięki specjalnej powłoce. W pełni hydrauliczne opuszczanie i podnoszenie dzięki zaworowi bezpieczeństwa i trzem chromowanym tłokom. Prędkość opuszczania jest automatycznie regulowana ze względu na ciężar ładunku. Szybkie osiągnięcie maksymalnej wysokości wideł. Dodatkowy system stabilizacji podczas pracy. System zapobiegający przypadkowemu toczeniu. Wysokość podwozia równa zaledwie 430 mm daje wiele możliwości zastosowania.
Dane techniczne:
Udźwig 1 t
Szerokość całkowita 540 mm
Szerokość wideł 160 mm
Długość wideł 1150 mm
Min. wysokość wideł 85 mm
Wys. podnoszenia 715 mm
Wysokość podwozia 430 mm
Kąt skrętu kół 210°
Średnica kół skrętnych 180 x 50 mm
Średnica kół wideł 74 x 50 mm
Waga 122 kg
Dostępność: Od zaraz, na zapytanie
Gwarancja: 12 m–cy
Jak zamówić: - osobiście - telefonicznie (+48 604 442 530) - mailem (eldrew@pro.onet.pl)
Termin dostawy: 3 – 10 dni
Producent: UNICRAFT
Nazwa zdjęcia
Produkty
- Budownictwo
- Elektronarzędzia
- maszyny do drewna i metalu
- PDNOŚNIKI
- PRASY WARSZTATOWE
- PRZYBORY WARSZTATOWE
- STOJAKI ZABEZPIECZAJĄCE
- Stoły nożycowe (4)
- Urządzenia transportowe
Zmień branżę
Stalowa Wola
Zmień miejscowość
- Rzeszów
- Przemyśl
- Krosno
- Mielec
- Stalowa Wola
- Dębica
- Tarnobrzeg
- Jasło
- Jarosław
- Sanok
- Łańcut
- Nisko
- Przeworsk
- Leżajsk
- Kolbuszowa



