LANDSERVICE Łukasz Skłodowski

Budownictwo / Geodezja, geologia i kartografia

05-205 Klembów, Leśna 18

05-205KlembówLeśna 18Mazowieckie512392663

512 392... 663więcej

Wyślij wiadomość

Proszę podać treść wiadomości

Błędnie wypełniony adres

Nieprawidłowy telefon

Administratorem danych osobowych są NNV sp. z o.o. i Ogłoszeniodawca. Cele przetwarzania i Twoje prawa.

  kod bezpieczeństwa

Twoja wiadomość została wysłana.

Wystąpił bład podczas wysyłania wiadomości. Spróbuj ponownie później.

Ok

2

 


Tyczenie budynku, wyznaczenie budynku

Usługa w kategorii: Pomiary geodezyjne

Cena: do uzgodnienia

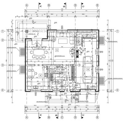
Wytyczenie budynku (wyznaczenie budynku) wykonuje się poprzez wbicie palików w narożach ścian fundamentowych lub oznaczenie gwoździami na tzw. ławach ciesielskich przecięć osi konstrukcyjnych tegoż budynku. Przed wezwaniem geodety należy zdjąć wierzchnią warstwę gruntu (humus) z miejsca budowy (w przypadku problemów ze zlokalizowaniem miejsca budowy można zamówić tzw. tyczenie wstępne). Najpóźniej dzień przed tyczeniem należy dostarczyć geodecie rzut parteru i fundamentów oraz projekt zagospodarowania działki. Dokumenty te znajdują się w zatwierdzonym projekcie budowlanym.

Tyczenie budynku potwierdza się wpisem do dziennika budowy.

Korzyści: szybkie terminy, precyzyjny sprzęt mierniczy, wpis do dziennika budowy w dniu wykonania usługi, określenie poziomu "0" budynku w cenie usługi.


Sposób wykonania: w ternie, na działce inwestora


Zasięg: Wołomin, Kobyłka, Zielonka, Marki, Ząbki, Radzymin, Poświętne, Klembów


Termin wykonania: 1-2 dni od przyjęcia zlecenia


Jak zamówić: Telefonicznie, przez e-mail, osobiście. Najpóźniej dzień przed tyczeniem należy dostarczyć geodecie rzut parteru i fundamentów oraz projekt zagospodarowania działki. Dokumenty te znajdują się w zatwierdzonym projekcie budowlanym.

Usługi


Zmień branżę

Budownictwo - Klembów


Klembów

 

Baza wiedzy

Darmowy dostęp do informacji na temat skutecznych metod promocji oraz prowadzenia biznesu.

Nasze produkty